View All Listings

Minnesota Avenue Office Building

630 S Minnesota Ave, Sioux Falls, SD 57104
Satellite ViewMap View
Satellite ViewSatellite View

Owner-Occupant Investment Opportunity

Sale Price
$835,000
Price / SF
$100.07 / SF
Building Size
8,344 SF +/-
Site Size
0.636 Acres +/-
Location Highlights
Located just south of downtown Sioux Falls on Minnesota Avenue, this property provides convenient access to the city’s business core and major commuter routes. Minnesota Avenue serves as one of the city’s primary north-south corridors with traffic counts of 30,800 VPD. The area benefits from proximity to McKennan Park, the University of Sioux Falls, and the Sanford Health Campus, adding long-term value for both investors and occupants. This property provides an ideal setting for a business looking to be near the downtown scene.
Description
  • To be delivered vacant at the time of sale; availability is negotiable
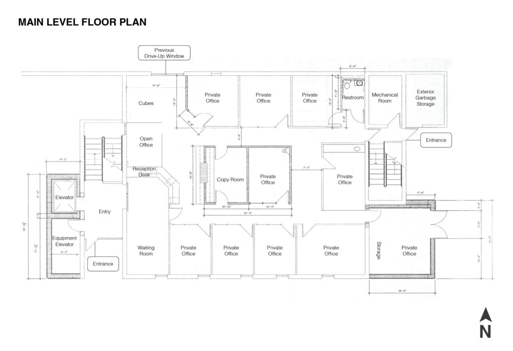
  • Level One Floor Plan: Waiting room, reception area & desk, 9 private offices, 1 open office, space for cubes, copy room, mechanical room, a restroom
  • Level Two Floor Plan: 9 private offices, 4 semi-private offices, open office area, large conference room/training room, copy room, heated storage, break room/kitchenette, and restrooms
  • Elevator access between floors
  • Existing infrastructure for drive-up access – contact Broker for details
  • Surface parking lot with 43 +/- stalls
  • Monument signage along Minnesota Ave
  • Existing garbage enclosure
  • Existing storage shed
  • Security provided by 3D Security with exterior cameras on each side of the building
  • Key fob access system
  • Built in 1976 with an addition in 2002
  • Zoning: C-2
  • Near McKennen Park, Sanford Health Campus, Augustana, and the University of Sioux Falls
  • Nearby amenities include Subway, Papa Johns, Taco Bell, Pit Pit, Sioux Falls Food Co-op, Silverstar Car Wash, and all of the great offerings from Downtown Sioux Falls
Usage
Jordan Rieffenberger, CCIM, SIOR
Jordan Rieffenberger, CCIM, SIOR
Director of Commercial Real Estate & Responsible Broker | 605.275.4258
Marisa Foster
Marisa Foster
Commercial Real Estate Marketing & Transaction Manager, Broker Associate | 605.690.9311

Contact Us