View All Listings

The Carlton at Dawley Farm

5501 E. 18th Street, Sioux Falls, SD 57110
Satellite ViewMap View
Satellite ViewSatellite View

Office Space For Lease At Dawley Farm

Shell Space Lease Rate
$17.00 / SF NNN
Built-Out Space Lease Rate
$18.00 / SF NNN
Est. NNN
$6.00 / SF
TIA (Shell Spaces)
$40.00 / SF
Shell Space Size
1,920 - 7,406 SF +/-
Built-Out Space Size
408 - 889 SF +/-
Location Highlights
The Carlton at Dawley Farm is a brand-new, upscale east side community designed for modern business. This mixed-use property blends contemporary design with function, offering retail and office shell space ready for customization available now. The Carlton is positioned within a vibrant and expanding development, Dawley Farm Village, a 300-acre retail and residential destination that brings together shopping, dining, and entertainment.
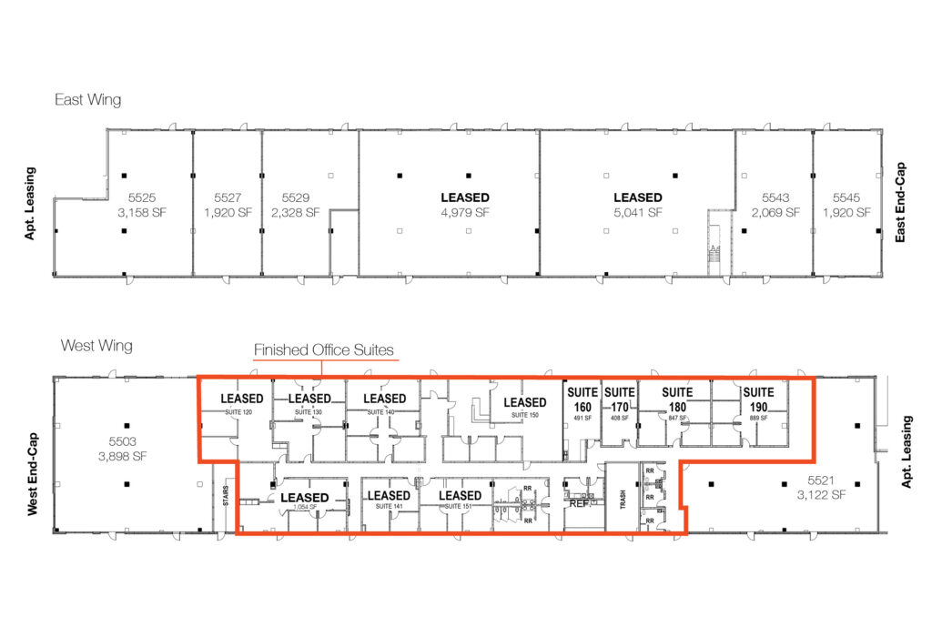
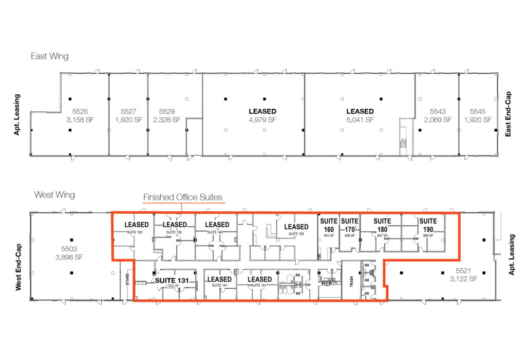
Description
  • Shell space available for tenant build-outs
  • 3 built-out spaces are available for lease:
    • Suite 160, 170, 190: available June 1, 2026
    • Common area: restrooms, employee lounge, mother’s/wellness room
    • Class A finishes
    • FF&E is not included
  • Signage Opportunities: monument, window, and building signage available
    • All signage must be approved by the LL
  • Dominant east side shopping destination anchored by: Target, Kohl’s, Walmart, Ashley Furniture, Burlington Coat Factory, Century Theaters, Famous Footwear, Maurice’s, Dollar Tree, Cherry Berry, Subway, Avera Health, Supercuts, ULTA Beauty, Bath & Body Works and more
  • Dawley Farm Village draws 7.6M annual visits from across the MSA
  • Transportation Upgrades:
    • Arrowhead Parkway & Veterans Parkway Intersection: This project will create the largest intersection in South Dakota, featuring 10 lanes on one roadway and 9 on the other, along with three pedestrian underpasses to support walkability and safety. Planned improvements include underground utilities, grading, retaining walls, concrete paving, street lighting, traffic signals, and a landscaped median. Once complete, the intersection will help reduce congestion, improve traffic flow, and better support nearby businesses and residents. Construction is underway with completion anticipated by spring 2027.
    • Veterans Parkway Infrastructure Improvements: This project is the final stage in connecting I-29 and I-90 with construction beginning in 2023 with an anticipated completion date in 2026. This 6-lane (3 in each direction) addition is aimed to largely reduce congestion on nearby roads and prepare Sioux Falls for 2050 transportation system needs. With this addition, it is anticipated that the area of Dawley Farms Village will largely increase in traffic.
  • Professionally managed by Lloyd Commercial Property Management
Usage
Raquel Blount, SIOR
Raquel Blount, SIOR
Vice President of Commercial Real Estate & Broker Associate | 605.728.9092

Contact Us