View All Listings

Empire Place Retail

4019 W 41st St, Sioux Falls, SD 57106
Satellite ViewMap View
Satellite ViewSatellite View

Empire Place Retail

Suite Size
1,618 SF +/-
Price / SF
$26.00 / SF NNN
Est. NNN
$9.88 / SF
Location Highlights
The Empire Place development broke ground in 2020 to build upon the high success and momentum of the Empire Mall, South Dakota’s most visited (8.6M annual visits) and profitable shopping mall. Its positioning off I-29, near the intersection of Louise Avenue and W. 41st Street, boasts the highest traffic count(s) in all of South Dakota. With its proximity to the Interstate, travelers from within or outside of the trade area can easily access, Empire Place.
Description
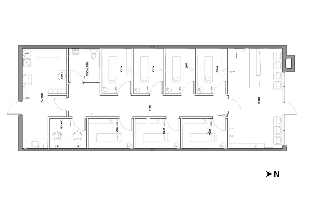
  • Suite 4019: previous waxing center

    • Floor plan includes lobby, 7 rooms ideal for personal care services, 1 office, restroom, and a utility room

  • Available now

  • Building and monument signage opportunities

  • In-line suite with neighbors Glamour Nails, The Good Feet Store, Buff City Soap, and Crumbl Cookies

  • Other development co-tenants include Chipotle Mexican Grill, Chick-fil-A, Chase Bank, Face Foundrie, Smoothie King, drybar, Nautical Bowls, Pizzashop, Hallmark, Flyboy Donuts, Rocket Fizz, Snooze Mattress, & Taichi Bubble Tea

  • Built in 2020 with the newest buildings being added in 2023

  • Nearby retailers include Target, Kohl’s, Bed, Bath & Beyond, TJ Maxx, 7 Brew Coffee, several restaurants and so much more

  • West of the 41st & Louise intersection with 58,900 vehicles per day – the most trafficked intersection in South Dakota

  • Adjacent to The Empire Mall, South Dakota’s most visited (8.6M annual visits) and profitable shopping mall

Usage
Raquel Blount, SIOR
Raquel Blount, SIOR
Vice President of Commercial Real Estate & Broker Associate | 605.728.9092

Contact Us