View All Listings

The Crimson | Suite A

601 W 86th Street, Suite A, Sioux Falls, SD 57108
Satellite ViewMap View
Satellite ViewSatellite View

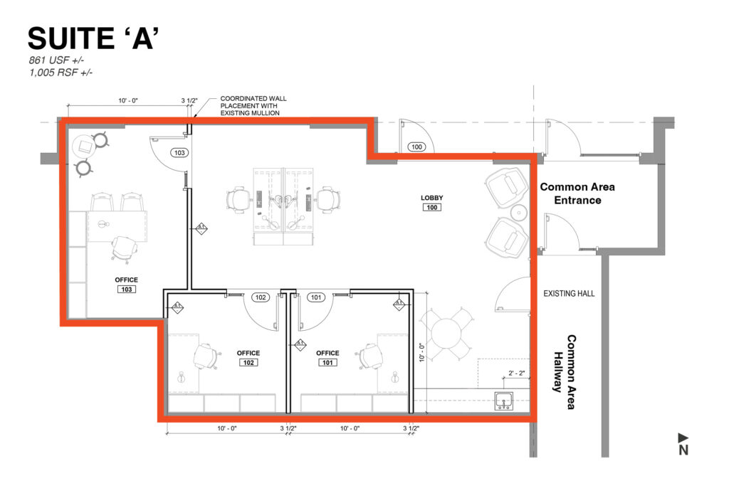
Suite 'A' For Lease

Price / SF
$18.00 / SF NNN
Est. NNN
$7.25 / SF
Suite Size
861 USF +/-
Suite Size
1,005 RSF +/-
Location Highlights
Class A, built-out office space near the 85th Street & Minnesota Avenue intersection in southern Sioux Falls. This site is surrounded by a growing mix of national and local retailers including Walmart, Starbucks, solidcore, Scooter’s Coffee, Valvoline, Jersey Mike’s, McDonald’s, and so much more. The property sits just north of the Veterans Parkway expansion, a major infrastructure project connecting I-29 and I-90 and supporting long-term growth in southern Sioux Falls.
Description
  • To be delivered as a built-out suite
  • Build-outs will be complete February 2026
  • Floor-to-ceiling windows
  • Common area restrooms
  • Private entrance, or common area entrance
  • Large surface parking lot on-site
  • Signage opportunities include building, window, directory, and monument
  • Co-tenants include Ellie Stone Bride, State Farm Insurance – Austin Hoflock, and Old Republic Surety Company
  • In an upscale area of Sioux Falls with a MHHI of $125,000+ within a 1-mile radius
Usage
Raquel Blount, SIOR
Raquel Blount, SIOR
Vice President of Commercial Real Estate & Broker Associate | 605.728.9092

Contact Us