View All Listings

Event & Catering Building

26665 481st Ave, Brandon, SD 57005
Satellite ViewMap View
Satellite ViewSatellite View

Retail for Sale

Building Size
7,380 SF +/-
Parcel Size
2.00 Acres +/-
Sale Price
$1,850,000
Price / SF
$250.68
Location Highlights
Located between eastern Sioux Falls and Rowena, SD, the site benefits from continued residential and commercial development on the east side of Sioux Falls. The property is positioned near the Arrowhead Parkway and Veterans Parkway corridor, with major transportation investments underway including the Arrowhead & Veterans Parkway Intersection improvements and the Future Veterans Parkway Connection. These upgrades are designed to reduce congestion, improve traffic flow, and enhance regional connectivity, supporting long-term growth throughout the east side market.
Description
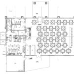
  • Floor plan offers a large open showroom with men’s and women’s restrooms and direct access to a spacious outdoor patio. Features a full commercial kitchen including a walk-in cooler and freezer, chef’s restroom with a shower, utility room with washer & dryer, direct connection to a two-stall garage, and three private offices
  • Concrete patio with a wood pergola overlooking open fields; complete with electrical outlets and hose hookups
  • Two-stall attached garage (26’x30′) with two 10’x10′ doors, 12′ ceiling height, Reznor heater, hose hookups, and floor drainage
  • 12’x24′ outdoor shed with a roll-up overhead door
  • Covered front entrance with canopy
  • FF&E to include:
    • Full commercial kitchen, including Class 1 Hood
    • 8’x10′ walk-in freezer
    • 10’x12′ walk-in cooler
    • Patio grill
    • Tables, chairs, pots, pans, silverware, etc.
  • Building and monument signage
  • 72+ surface parking stalls
  • Parking lot and exterior building lighting
  • On-site propane tank supporting commercial kitchen
  • Capacity: 320 indoor, ~80 outdoor
  • Real Estate Taxes: $9,871.66 (2025 Taxes Payable in 2026)
  • Contact Broker for additional details
Usage
Alexis Mahlen
Alexis Mahlen
Broker Associate | 605.321.4861

Contact Us