View All Listings

26th & Cliff Office Building | Lease

1808 S. Cliff Ave, Sioux Falls, SD 57105
Satellite ViewMap View
Satellite ViewSatellite View

Office Building for Lease

Building Size
3,426 SF +/-
Price / SF
$14.00 / SF NNN
Est. NNN
$6.90 / SF
Location Highlights
Located along South Cliff Avenue in central Sioux Falls, near the Avera Health Campus, McKennan Park, Lincoln High School, and a short drive to downtown. Positioned near a lighted intersection.
Description
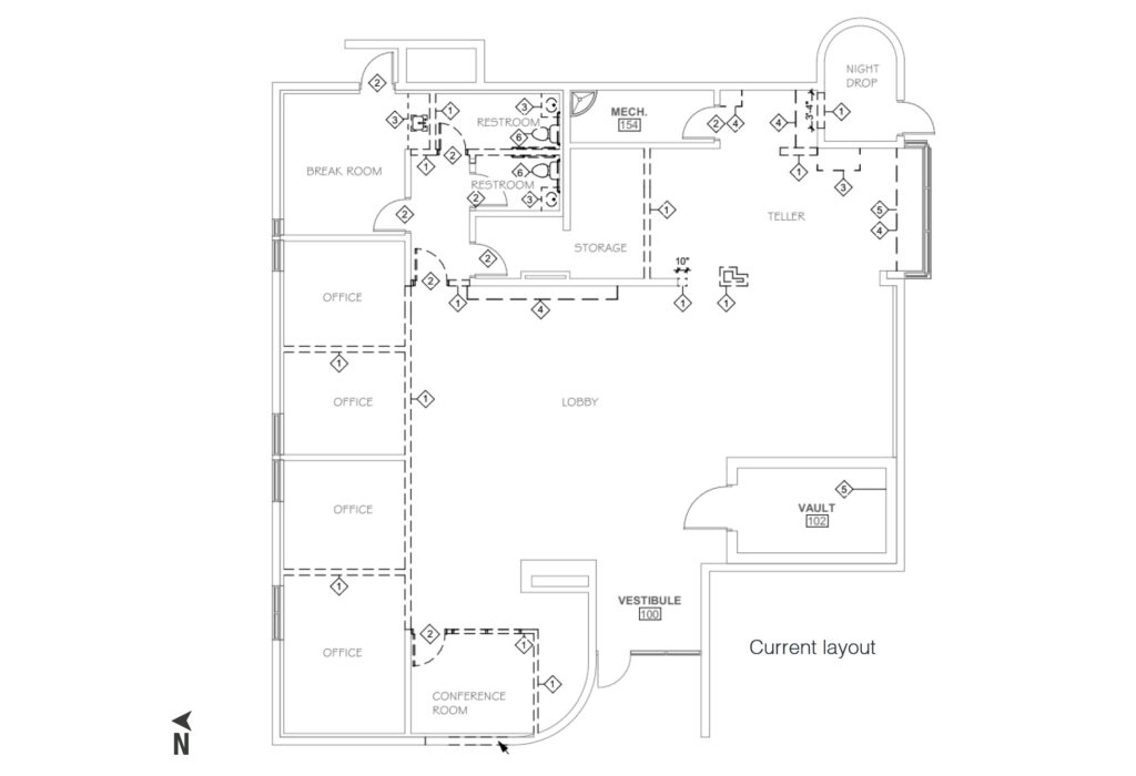
  • Former bank floor plan offers a large open lobby, four private offices, conference room, break room, storage room, mechanical room, and former vault & night drop
  • Ample surface parking on the north and south side of the building
  • Rear entrance
  • Pylon signage available
  • New landscaping by Weller Brothers in 2025
  • Available now
  • Built in 1975
  • Near the Avera Health Campus, a 52-acre regional healthcare center
  • South Cliff Avenue carries 9,400 VPD
  • Nearby amenities include Circle K, Goodcents Sub Shop, Spoke-N-Sport, the Sioux Falls Bike Trail, and a short drive to downtown amenities
  • This building is also available for sale
Usage

Contact Us