View All Listings

2604 S Louise Avenue

2604 S Louise Ave, Sioux Falls, SD 57106
Satellite ViewMap View
Satellite ViewSatellite View

Retail Suite for Lease

Suite Size
1,390 SF +/-
Price / SF
$16.00 / SF NNN
Est. NNN
$7.91 / SF
Location Highlights
Along S. Louise Avenue, this site sits within an established strip mall in a dominant retail corridor. With direct access to 41st Street, the 41st & Louise intersection remains one of the city’s most influential retail nodes, anchored by Target, The Empire Mall, and Starbucks, among many other retailers.
Description
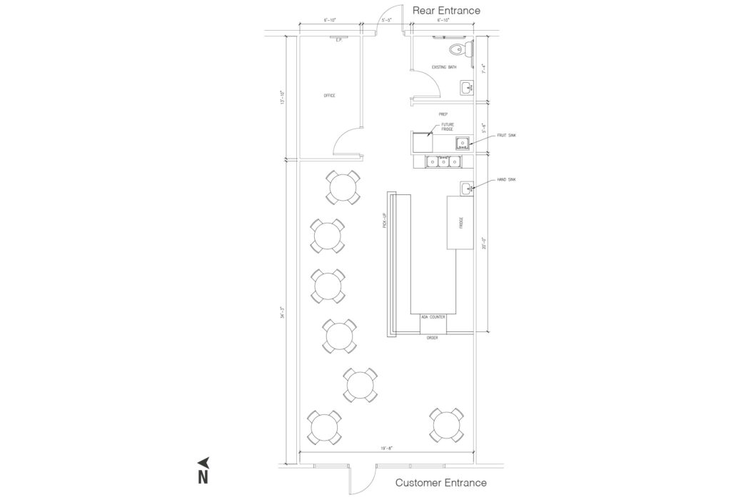
  • Efficient open layout with a long front counter featuring forward-facing prep space, flexible seating area, mens and womens restrooms, a utility closet, and back-of-house space with multiple sinks, storage, and refrigeration
  • Defined customer flow from entry to point-of-sale
  • Available 01/01/2026
  • Pylon and building signage opportunities
  • 256 shared surface parking stalls
  • Co-tenants include Sickies Garage Burgers & Brews, L.A. Nails, Aria Salon Studios, and a restaurant (announcement coming soon)
  • Louise Avenue carries traffic counts of 21,800 VPD
  • Dedicated turning lane into the parking lot for ease of access
  • Within the Meadows on the River Development, which is anchored by The Home Depot, Sam’s Club, Aldi, and Barnes & Noble; the development attracts a growing 14.0M visitors annually
Usage
Scott Blount
Scott Blount
Broker Associate | 605.231.1882

Contact Us